杉並区荻窪四丁目は、「西の鎌倉、東の荻窪」と称された別荘地時代の面影を色濃く残す静穏な街です。
太田黒公園や角川庭園に代表されるように景観にも優れた街でありながら、JR中央線・東京メトロ丸の内線「荻窪」駅にも非常に近い立地です。
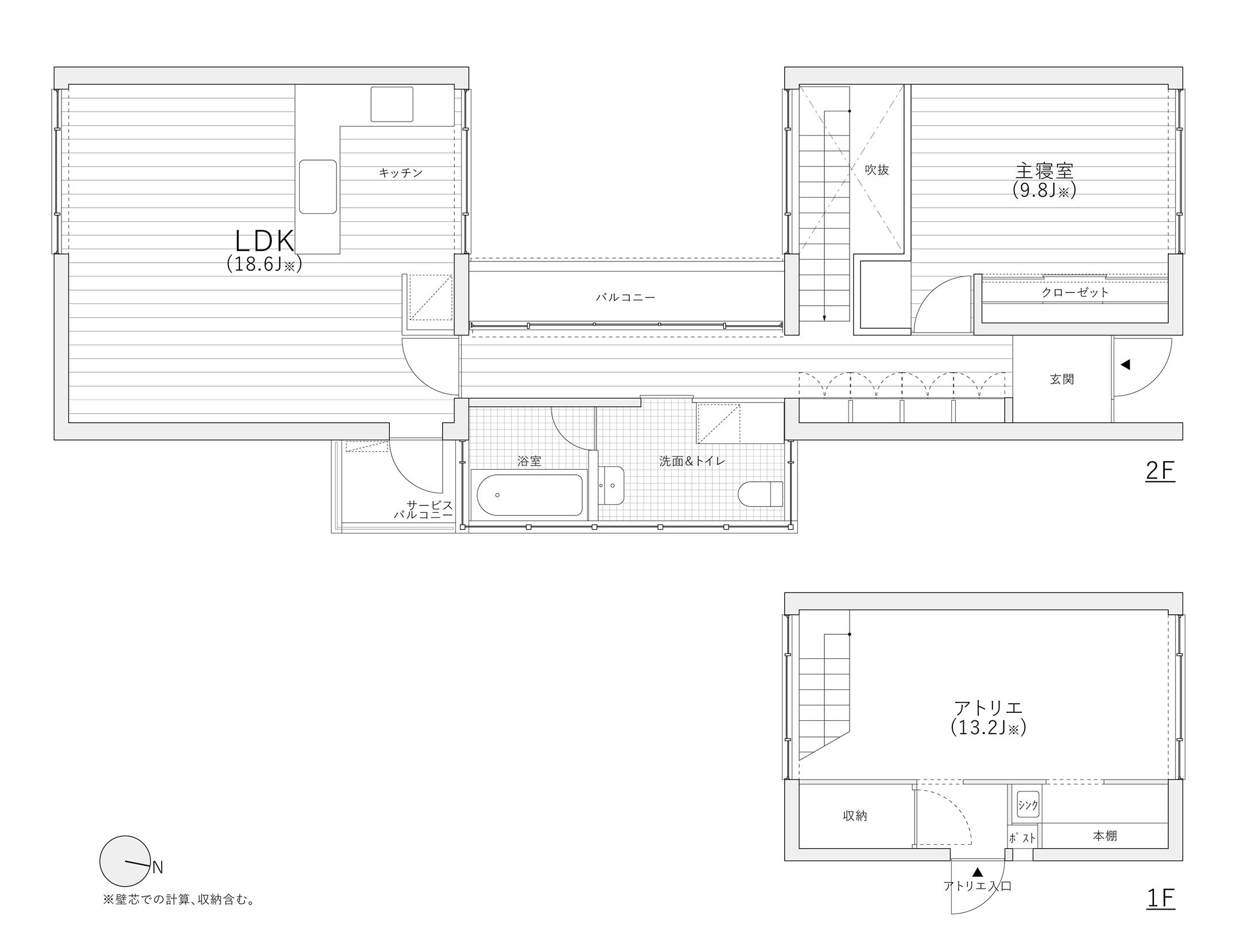
アトリエ付きのゆったりとした住戸をご紹介します。(駐車場使用権付き)
- 本物件は仲介物件です。
- 内覧をご希望される方は、下記予約フォームからご登録ください。 担当者より詳しいご案内をいたします
- モデルルームではございませんので、参考でのご見学はご遠慮下さい。
- 先着順での販売となりますので、先決の際はご了承ください。
COURT HOUSE Ⅳ - 住戸プラン
専有面積 92.27㎡ | 1LDK+アトリエ |南向き約18畳のリビング、ゆったりした居室とアトリエのある住戸 | 販売価格12,950万円
LDK・主寝室・水周りなどの生活空間が2階にまとまっており、ひかり溢れる吹抜階段を介して1階のアトリエとつながっています。
生活空間にもアトリエにもそれぞれの玄関があり、純粋にSOHO空間を実現しています。
アーキネットのコーポラティブハウスのなかでも初期の企画だからでしょうか、非常にゆったりとした設計です。
2021年に大規模修繕を終えており、共用部が丁寧に管理されてきたことが見て取れます。
- ※1 1住戸のみのご紹介です。
- ※2 先着順での販売となりますので、先決の場合はご了承ください。

COURTHOUSE IV - 住戸写真

荻窪駅から徒歩4分、ちょうど第一種低層住居専用地域に切り替わる街区に属しています。

1階アトリエの玄関、風が抜ける共用廊下

2階の玄関、明るくゆったりしている

珪藻土の質感でやわらかく広がる光、南向きの大きな窓からは樹木もみえている

キッチン側にも窓があり明るい設計、キッチンは立派な造作キッチン

ガラスブロックの美しい光があふれる居室、たっぷりのクローゼットと目立たないよう隠蔽されたエアコン

アトリエ空間に面する吹き抜け、ひろがる光が美しい

吹抜上の窓、小さな鉢植えをならべたくなる場所

アトリエの玄関、土足での利用も可能

機械式駐車場の使用権付き
ご購入までの流れ
-

1. 内覧
一般的なマンションでは得られない「豊かな空間」と「居心地の良さ」をご確認ください。
-

2. 購入申込
所定の購入申込書をご提出いただきます。
申込みは先着順での受付となります。 -

3. 住宅ローン審査
住宅ローンの事前審査を受けていただきます。
源泉徴収票ほかをご用意いただきます。 -

4. ご契約
売買契約の締結、媒介契約の締結、各種支払い
-

5. 決済・お引渡し
残代金のお支払い、引渡し
物件概要
□ COURTHOUSE IV
| 所在地: | 杉並区荻窪4丁目 |
| 交通: | JR中央線・総武線「荻窪」駅徒歩4分 |
| 敷地面積: | 284.29㎡/85.99坪 |
| 土地権利: | 所有権 |
| 地目: | 宅地 |
| 地域地区等: | 第一種低層住居専用地域 |
| 建蔽率: | 50% |
| 容積率: | 100% |
| 構造規模: | 鉄筋コンクリート造 地下1階-地上3階建て |
| 総戸数: | 5戸 |
| 設計: | 木村丈夫/タオアーキテクツ |
| 施工: | 中野建設株式会社 |
| 管理形態: | 一部委託管理 |
| 管理会社: | 株式会社イルタス |
| 竣工: | 2006年3月(築20年)※2021年大規模修繕実施済み |
□販売住戸
| 専有面積: | 92.27㎡/27.91坪(壁芯面積) |
| バルコニー等: | 2階バルコニー、2階サービスバルコニー、機械式駐車場1台 |
| 土地権利: | 所有権 |
| 敷地権割合: | 10,000分の2,265 |
| プラン: | 地上1-2階メゾネット 1LDK+アトリエ(ペット:小型動物2頭まで) |
| 主要設備: | 食器洗乾燥機、オーブン、浴室換気乾燥機、床暖房 |
| 販売価格: | 12,950万円 |
| 管理費: | 22,590円/月 |
| 修繕積立金: | 上記に含む |
| その他利用料: | 機械式駐車場管理費10,000円/月 |
| 現況: | 空室 |
| 引渡し: | 即入居可 |
| 取扱形態 | 媒介 株式会社アーキネット 東京都知事(6)第74483号 東京都渋谷区鉢山町13-4ヒルサイドウエストB棟2F TEL 03-5458-2430 / FAX 03-5458-5575 |
| 所属団体: | (公社)東京都宅地建物取引業協会会員 (公社)首都圏不動産公正取引協議会加盟 |
| 更新日: | |
| 次回更新日: |
お問い合わせ
ご購入に関するお問合せは
までお願いいたします。
その他、アーキネットやコーポラティブハウスに関するお問合せは
までお願いいたします。




