現地は世田谷区上馬5丁目。田園都市線「駒沢大学」駅から徒歩10分の緑道に南面した立地となります。 ご紹介するお部屋は、築19年、地下1階-地上1階のメゾネット構成で、緑道に面した南向きの大きな開口がある1Rタイプの住戸(2ベッドルーム)となります。 敷地内に専用使用権の駐車場が付いています。ぜひ、ご検討ください。
- 本物件は仲介物件です。
- 内覧をご希望される方は、下記予約フォームからご登録ください。 担当者より詳しいご案内をいたします
- モデルルームではございませんので、参考でのご見学はご遠慮下さい。
- 先着順での販売となりますので、先決の際はご了承ください。
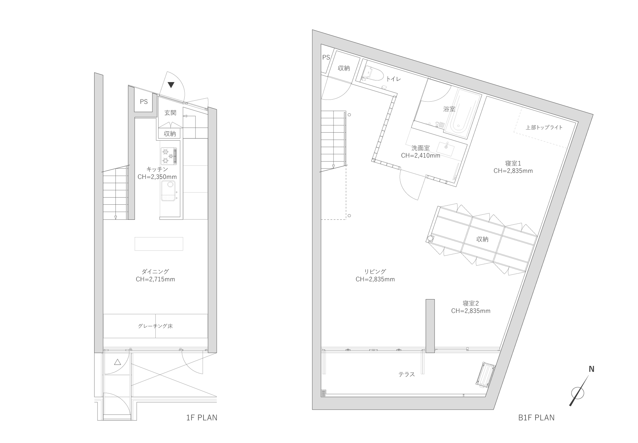
K-cinq D - 住戸プラン
専有面積 100.86㎡ | 1R(2ベッドルーム) |天井高2.8mの広々リビング、開放感のある住戸構成 | 販売価格12,800万円
地下1階-地上1階のメゾネット構成で南・北に開口部のある1R(2ベッドルーム)タイプの住戸となります。 1階ダイニングキッチンは緑道に南面した天井高2.7mの明るいダイニングスペース。 地下1階には、水回りとリビング、2ベッドルームを配置。水回り以外部屋を仕切っていないため、広がりと開放感が感じられる空間となっています。 地下1階の天井高は2.8m。専用使用権の駐車場が付いています。
- ※1 1住戸のみのご紹介です。
- ※2 先着順での販売となりますので、先決の場合はご了承ください。

K-cinq D - 住戸写真

1階ダイニングスペース。南向き大開口から明るい光が室内に差し込みます。(2026年3月撮影)

1階ダイニングキッチンスペース。キッチンとダイニングの間に配膳台収納があります。(2026年3月撮影)

地下1階リビングスペース。天井高2.8mで明るく開放感があります。南向き窓は全面開放が可能でテラスと繋がります。(2026年3月撮影)

地下1階リビングスペースと緩やかに繋がる寝室1。上部トップライトから柔らかい光が差し込みます。(2026年3月撮影)

地下1階洗面室。ガラスブロックで囲われた明るい洗面スペース。(2026年3月撮影)

1階玄関通路部(2007年撮影)

1階ダイニングキッチン(2007年撮影)

建物南側外観。緑道からもアクセス可能となります。(2007年撮影)
ご購入までの流れ
-

1. 内覧
一般的なマンションでは得られない「豊かな空間」と「居心地の良さ」をご確認ください。
-

2. 購入申込
所定の購入申込書をご提出いただきます。
申込みは先着順での受付となります。 -

3. 住宅ローン審査
住宅ローンの事前審査を受けていただきます。
源泉徴収票ほかをご用意いただきます。 -

4. ご契約
売買契約の締結、媒介契約の締結、各種支払い
-

5. 決済・お引渡し
残代金のお支払い、引渡し
物件概要
□ K-cinq D
| 所在地: | 世田谷区上馬5丁目 |
| 交通: | 田園都市線「駒沢大学」駅徒歩10分 |
| 敷地面積: | 336.72㎡/101.85坪 |
| 土地権利: | 所有権 |
| 地目: | 宅地 |
| 地域地区等: | 第一種低層住居専用地域 |
| 建蔽率: | 50% |
| 容積率: | 100% |
| 構造規模: | 鉄筋コンクリート造 地下1階-地上3階建て |
| 総戸数: | 5戸 |
| 設計: | 牧島哲郎+宮田聡夫/FNDC |
| 施工: | 株式会社ケイワイ建設 |
| 管理形態: | 一部委託管理 |
| 管理会社: | 株式会社三基富士 |
| 竣工: | 2007年6月(築19年) |
□販売住戸
| 専有面積: | 100.86㎡/30.51坪(壁芯面積) |
| バルコニー等: | 1階ブリッジ、地階ドライエリア |
| 土地権利: | 所有権 |
| 敷地権割合: | 10,000分の1,932 |
| プラン: | 地下1階地上1階メゾネット 1R |
| 主要設備: | 駐車場専用使用権 |
| 販売価格: | 12,800万円 |
| 管理費: | 16,219円/月 |
| 修繕積立金: | 4,830円/月 |
| その他利用料: | なし |
| 現況: | 居住中 |
| 引渡し: | 相談 |
| 取扱形態 | 媒介 株式会社アーキネット 東京都知事(6)第74483号 東京都渋谷区鉢山町13-4ヒルサイドウエストB棟2F TEL 03-5458-2430 / FAX 03-5458-5575 |
| 所属団体: | (公社)東京都宅地建物取引業協会会員 (公社)首都圏不動産公正取引協議会加盟 |
| 更新日: | |
| 次回更新日: |
お問い合わせ
ご購入に関するお問合せは
までお願いいたします。
その他、アーキネットやコーポラティブハウスに関するお問合せは
までお願いいたします。




